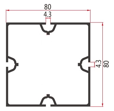
Codice: M081
Profilo quadrato 4 vie 80 mm (Lunghezza barra 600 cm)
Peso: 2,210 kg/m
Inserisci le tue credenziali per accedere alle sezioni riservate del sito.